佛冈县人民医院原培训室改造职工用餐室征集公告
现我院对原培训室改造职工用餐室项目进行需求征集,欢迎有意向符合条件的供应商报名参与,征集信息如下:
一、项目内容:
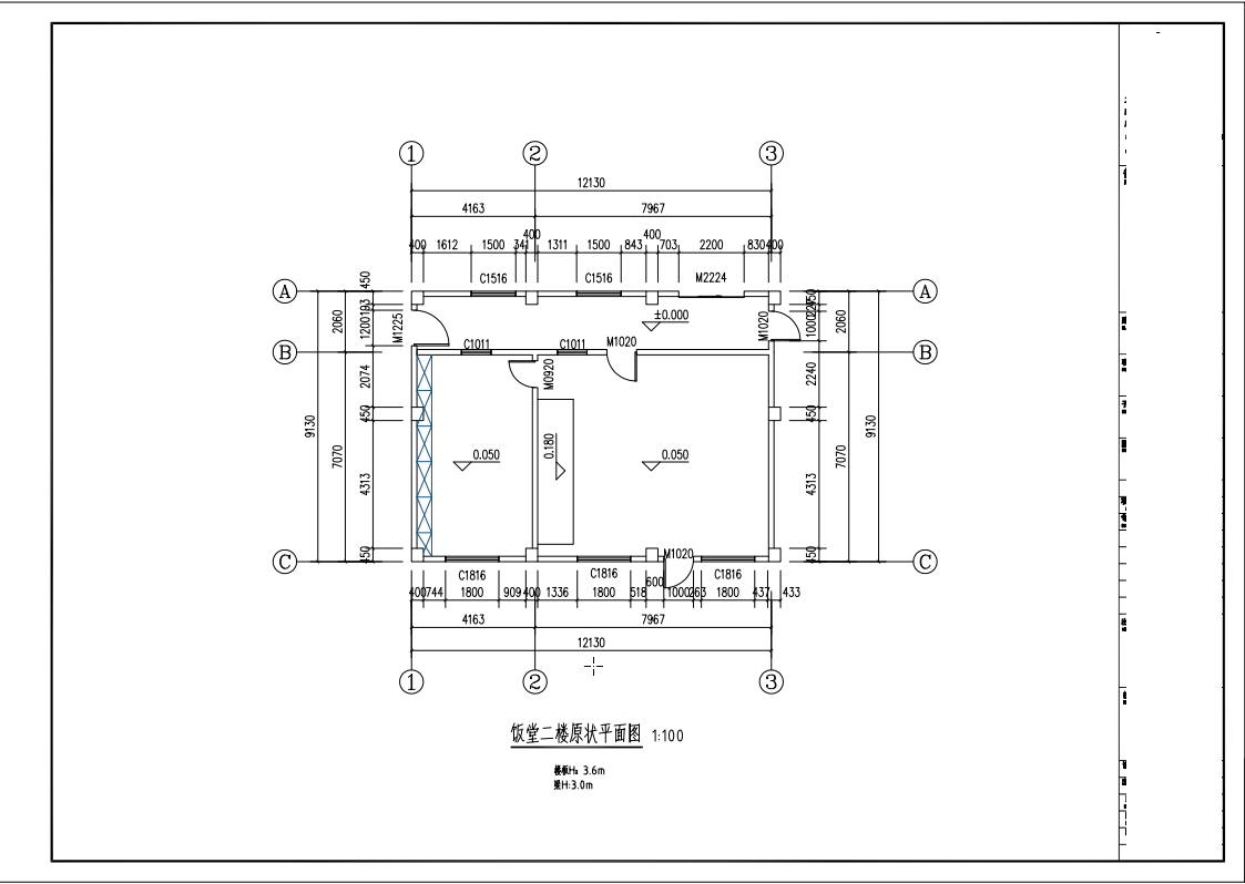
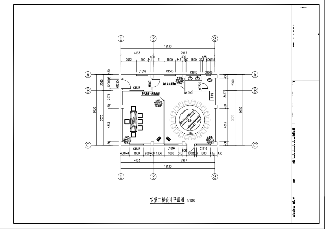
1.项目地点位于佛冈县人民医院饭堂二楼。
2.项目内容包括:金属门窗拆除、墙体拆除、加装木门、墙面加装装饰板、天面安装蜂窝板天花、地面重新铺设瓷砖、新做一间卫生间等,含屏风隔断采购安装。(详见附件)
二、申请人的资格要求:
1.应具备《中华人民共和国政府采购法》第二十二条规定的条件;
2.必须是在中华人民共和国境内注册的具有独立承担民事责任能力的法人或其它组织,并符合项目相关经营许可范围;
3.本项目不接受联合体报名,不允许分包、转包。
4.供应商有承接同类改造项目经验者优先。
三、报名资料要求
1.报名文件:按报名资料(附件1)要求,提供加盖公章证明文件(红色公章),扫描成PDF文件以“公司+项目名称”命名邮件发送到邮箱hty648748915@163.com。
2.报价文件:请按(附件2)格式要求填写,加盖公章后以纸质打印单独密封提交。
3.同时递交一套纸质版资料,可直接递交至下文报名地址,也可以邮寄送达(需在封面显眼处注明清晰无误的联系方式,并在截止时间之前送达),递交或邮寄资料均需单独密封报价文件,其余文件不需密封。
五、报名时间
1.报名时间:2024年9月9日至2024年9月14日(上午08:30至11:30;下午02:30至05:00,周末不接收报名资料,如有疑问请电话咨询)。
2.报名及邮寄地址:佛冈县人民医院招标采购科(佛冈县人民医院对面内科大楼11楼)。
六、项目调研会时间另行通知。
七、联系人信息
1.联系人:黄先生,
2.电话:0763-4271882。
佛冈县人民医院
招标采购科
2024年9月9日
清单佛冈县人民医院原培训室改造成职工用餐室-建筑装饰.xlsx
清单佛冈县人民医院原培训室改造成职工用餐室-安装工程.xlsx






用户登录